Украинский производитель Gavryliv Sons не нуждается в представлении: европейские материалы, высокое качество и надежность — неизменные спутники каминных топок от компании «Гаврилов и сыновья».
Угловая каминная топка «Gavryliv & Sons» 74×37х44WM с водяным контуром обладает рядом преимуществ:
- угловое стекло большого размера, позволяющее любоваться живым огнем из любой части комнаты;
- дверная рама из цельнотянутого профиля, повышающая прочность конструкции;
- глубокое дно, позволяющее избавиться от трудностей с частой уборкой камина и не требующее наличия зольного ящика;
- система чистого стекла, предусматривающая подачу холодного воздуха по специальным каналам в дверной раме и создающая воздушную завесу, защищающую стекло от копоти, а также обеспечивающую вторичный дожиг дымовых газов;
- наличие в топке охлаждающего контура, который, в случае превышения температуры воды установленного уровня, будет охлаждать основной водяной контур проточной водой (данная установка, соответственно, предполагает постоянный источник проточной воды, не зависящей от локальных энергоносителей);
- топка рассчитана на функционирование в открытой и закрытой системах (при этом открытую систему обоснованно считают наиболее безопасным способом подключения для оборудования на твердом топливе, поскольку даже в случае неконтролируемого горения и несрабатывания всех защитных систем, она позволяет обеспечить свободное кипение топки с выбросом избытка воды и/или водяного пара. При этом для восстановления работоспособности системы достаточно повторно заполнить ее водой);
- надежный и долговечный механический механизм регулирования подачи воздуха;
- качественная, долговечная и эстетичная стеклокерамика SchottROBAX®;
- дно топки футеровано немецким шамотом Wolfshöher Tonwerke для поддержания сверхвысоких температур горения (до 1110 ºС) и полного догорания топлива;
- покрытие безопасной и экологичной жаростойкой краской Senotherm®.
Данная топка доступна для заказа как с правым, так и с левым угловым стеклом.
К каждой модели доступны для заказа несколько вариантов ручек: ручка Слим (Стандарт), ручка Нож, ручка Пружинка. Базовой комплектацией предусмотрена ручка Слим. Стоимость Ножа и Пружинки по запросу.
При необходимости выполним установку и подключение каминной топки, а также облицовку Вашей печи или камина в Одессе и регионе.
Номинальная мощность: 24 кВт
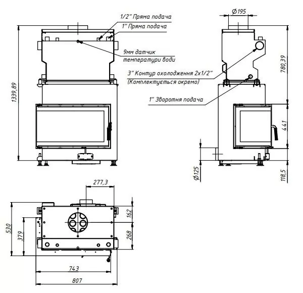
Высота топки: 1340 мм
Ширина топки: 807 мм
Глубина топки: 530 мм
Размеры по стеклу (ВхШ): 740х370х440 мм
КПД: ˃80 %
Вес: 262,9 кг
Топливо: дрова
Потребление дров: 7 кг/час
Первая закладка дров: 10 кг
Последующие закладки: 7 кг
Размер дров: 33 — 50 см
Диаметр дымохода: 200 мм
Диаметр подведения воздуха: 125 мм
Поток дымовых газов: 22 г/с
Тепловое излучение
Стекло одинарное / двойное: 30 / 18 %
Корпус: 20 / 27 %
Водяной контур: 50 / 55 %
Водяной контур
Диаметр подведения водяного контура: 1´´
Диаметр подведения контура охлаждения: 3´´ 2х1/2´´
Топка сертифицирована в соответствии с ДСТУ 3075-95
Производитель: Gavryliv Sons, Украина.






