Каминная топка Dovre ZEN102 является оптимальным вариантом сочетания качества, необычного дизайна и высокой производительности камина при относительно компактных размерах: топка сквозная (туннельная), ее КПД составляет 80 %, а также предусмотрена система вторичного дожига дымовых газов.
Данная топка обладает рядом преимуществ, среди которых:
- Туннельная (сквозная) камера сгорания, позволяющая воплощать в жизнь самые необычные дизайнерские решения в интерьере одного или нескольких помещений.
-
Качественное термостойкое стекло с шелкографией, позволяющее безопасно эксплуатировать изделие и любоваться завораживающей игрой огня в камине.
-
Встроенная система «чистого стекла», создающая воздушную завесу, которая защищает стекло от копоти и сажи, а также обеспечивает вторичный дожиг дымовых газов, делая отопление еще эффективнее.
-
Камера сгорания футерована вермикулитом, что также повышает производительность камина.
-
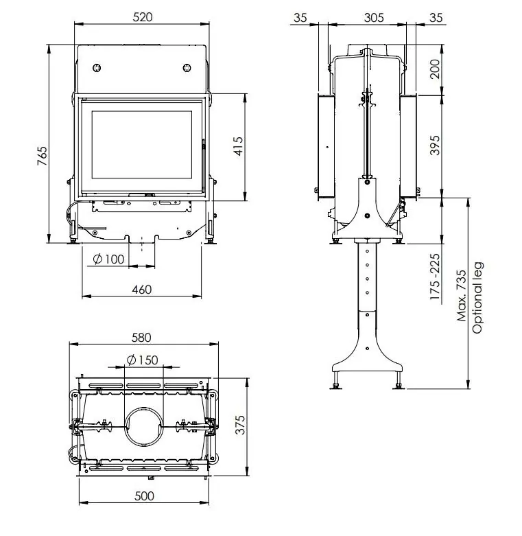
Размер топки составляет 580 х 765 х 375 мм, что обеспечивает хороший обзор горящего огня и при этом позволяет спроектировать камин в любой удобной части дома.
-
Подача в топку воздуха для горения, что существенно увеличивает эффективность работы камина и оптимизирует расход дров.
-
Система «холодная ручка», предусмотренная производителем, позволяет комфортно пользоваться изделием во время его работы.
-
Материал изготовления — чугунный сплав высокого качества (корпус топки — цельнолитой), что гарантирует комфортную эксплуатацию изделия в течение долгих лет.
Опционально (не входит в базовую комплектацию) можно заказать комплект дополнительных ножек для увеличения высоты топки и крепления к стене, а также декоративную рамку.
Данная топка также доступна для заказа без туннеля (с одним прямым стеклом).
При необходимости выполним установку и подключение отопительного прибора к дымоходу, а также облицовку Вашего камина или печи.
Высота топки: 765 мм
Ширина топки: 580 мм
Глубина топки: 375 мм
Вес: 100 кг
Мощность: 5 кВт
КПД: 80 %
Площадь отопления: 50 м²
Диаметр дымохода: 150 мм
Подключение к дымоходу: Верхнее
Подвод внешнего воздуха: Да
Вторичный дожиг газов: Да
Подача воздуха на стекло: Да
Зольный ящик: Нет
Шибер: Нет
Цвет: Черный
Материал: Чугун
Топливо: Дрова
Конфигурация: туннель






