Цена может отличаться от указанной. Актуальную цену узнавать по телефону +380730661843.
Каминные топки серии VISTA от норвежского производителя Dovre — это линейка самых современных, экономичных и эстетичных решений для Вашего дома. Благодаря продуманной конструкции они отличаются высокой эффективностью работы (КПД 83%), а широкоформатное стекло позволяет наслаждаться игрой живого огня в камине.
Наличие в серии разных моделей (в трех размерах, с вермикулитовыми или чугунными вставками, с дистрибьютором и без, и даже камин-кассета) дает возможность подобрать оптимальную топку для каждого заказчика. А предоставленная производителем возможность выбора между минималистичной рамкой в 4 мм или дополнительной рамкой в 25 мм сделает Ваш камин еще более индивидуальным и неповторимым.
Каминная топка Dovre VISTA 701C / 702C с дистрибьютором (конвектором) — это оптимальный вариант для строительства мощного отопительного и при этом визуально эстетичного камина. Среди ее преимуществ:
- Дистрибьютор (конвектор или конвекционный кожух), позволяющий еще более эффективно накапливать и распределять по воздуховодам горячий воздух для обогрева помещений.
- Футеровка камеры сгорания, значительно повышающая производительность камина: модель VISTA 701C футерована ребристыми чугунными вставками, модель VISTA 702C футерована вермикулитом. Обе модели доступны к заказу. Цена указана за модель VISTA 702C.
- Встроенная система «чистого стекла», создающая воздушную завесу, которая защищает стекло от копоти и сажи, сохраняя его эстетичный вид.
- Технология вторичного дожига дымовых газов, делающая отопление еще эффективнее.
- Качественное термостойкое стекло, позволяющее безопасно эксплуатировать изделие и любоваться завораживающей игрой огня в камине.
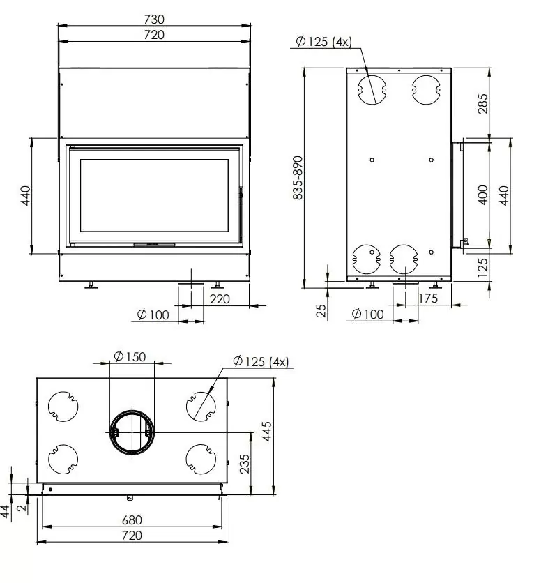
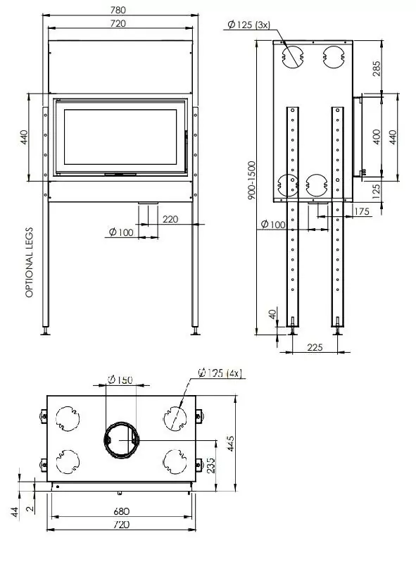
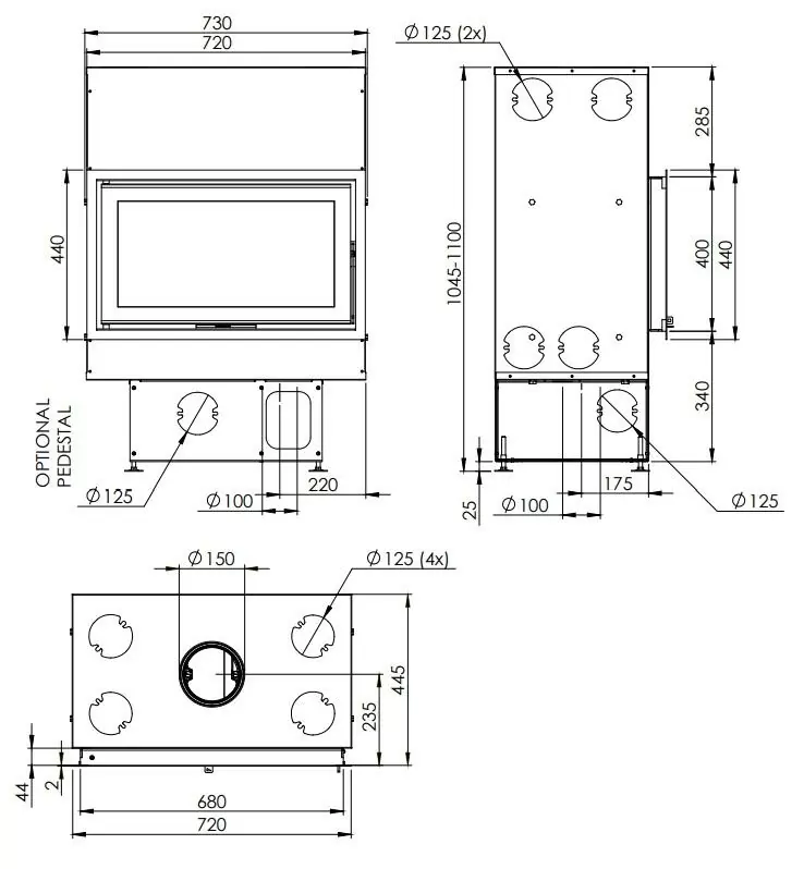
- Размер топки составляет 730 х 835-890 х 415 мм, что обеспечивает хороший обзор горящего огня из любой части помещения.
- Мощность топки 10 кВт, что позволяет эффективно использовать отопительную функцию камина, обеспечивая уют и тепло в помещении.
- Подача в топку воздуха для горения с улицы, что существенно увеличивает эффективность работы камина и оптимизирует расход дров.
- Наличие зольного ящика, облегчающее очистку камина после его эксплуатации.
- Материал изготовления — сталь высокого качества, гарантирующая комфортную эксплуатацию изделия в течение долгих лет.
Также существует возможность установки дополнительных ножек или пьедестала, что позволит установить изделие на нужной высоте(опционально, НЕ входят в базовый комплект).
При необходимости выполним установку и подключение топки к дымоходу, а также облицовку вашего камина.









